令和3年リフォーム済4LDKでとても広く綺麗です。
HOME » 高知市潮見台売家
物件情報[詳細]
高知市潮見台売家
- 価格
- 2780万円
- 中古戸建
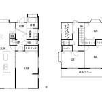
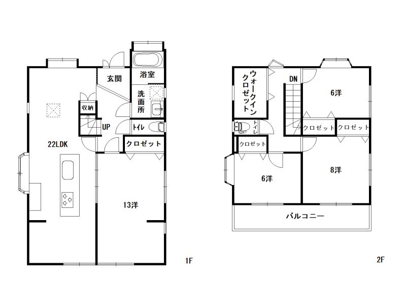
- 間取
- 4LDK
|
|
| 所在地 | 高知県高知市潮見台1 |
||
|---|---|---|---|
| 交通 | バス(潮見台公園前) 徒歩6分 | ||
| 築年月 | 1994/7 | 新築/中古 | 中古 |
| 面積 | m² | 計測方式 | |
| バルコニー | m² | 向き | |
| 建物階数 | 地上2階 | 部屋階数 | 階 |
| 部屋/区画番号 | 総戸/区画数 | ||
| 建物構造 | 木造 | ||
| 敷地全体面積 | m² | 延べ床面積 | 130.83m² |
| 間取内容 | |
||
| 駐車場 | 4 | 取引態様 | 仲介 |
| 引渡/入居時期 | 相談 | 現況 | 居住中 |
| 地目 | 宅地 | 用途地域 | |
| 都市計画 | 地勢 | 高台 | |
| 土地面積 | 165.2m² | 土地面積計測方式 | |
| 周辺環境 | |||
| 設備・条件 | 土地49.97坪 建物39,57坪 駐車場4台可 | ||
| 物件番号 | siomidai | ||
※物件掲載内容と現況に相違がある場合は現況を優先と致します。
お問い合わせ
株式会社ハウスオン
〒780-0066 高知県高知市比島町3丁目17番25号
TEL:088-871-6822 FAX:088-871-6833
営業時間:9:30~18:00 定休日:不定休
宅建免許番号:(社)高知県宅地建物取引業協会会員 高知県知事(1) 3030号







